Open Mon-Fri 9am-5pm
1114 Bass Hwy, The Gurdies VIC 3984
Phone +61 (03) 5672 5196
Email info@ecoliv.com.au
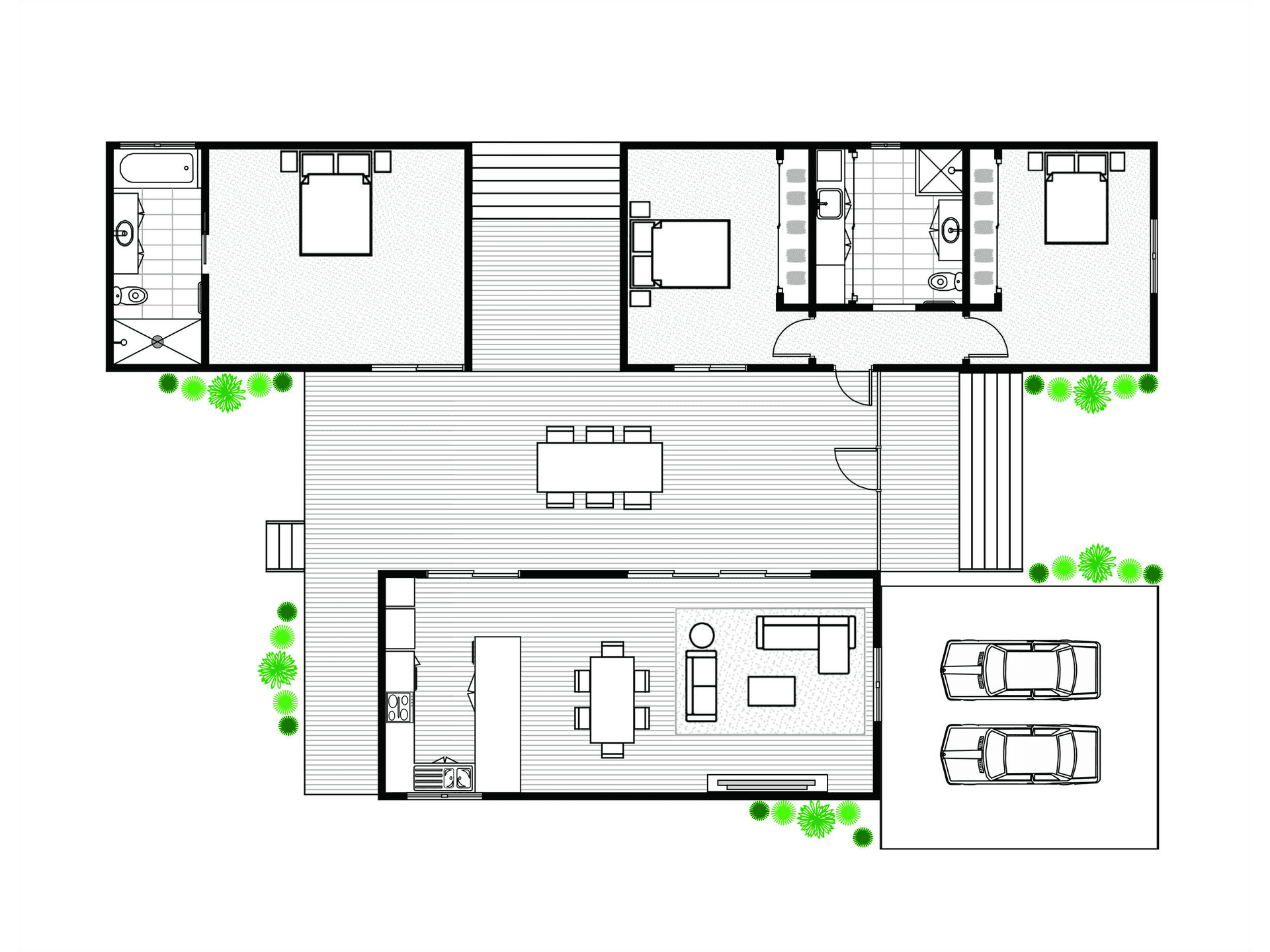
Constructed to meet the highest Bush Fire Assessment level BAL FZ Flame Zone, this modular home on the NSW coast is protected from the threat of bushfire without compromising aesthetics and respects the beauty of its natural surrounds.
The design features 2 separate modules which are positioned around a central courtyard area providing the perfect protected entertaining area.
The warm and temperate climate allows for an open air walkway to join living and sleeping modules whilst a screen to the front façade creates privacy and connectivity of the modules.
| Modules | 2 |
| Living Area | 129 m² |
| Deck Area | 85 m² |
| Price | From $595,000 + GST |
