Open Mon-Fri 9am-5pm
1114 Bass Hwy, The Gurdies VIC 3984
Phone +61 (03) 5672 5196
Email info@ecoliv.com.au
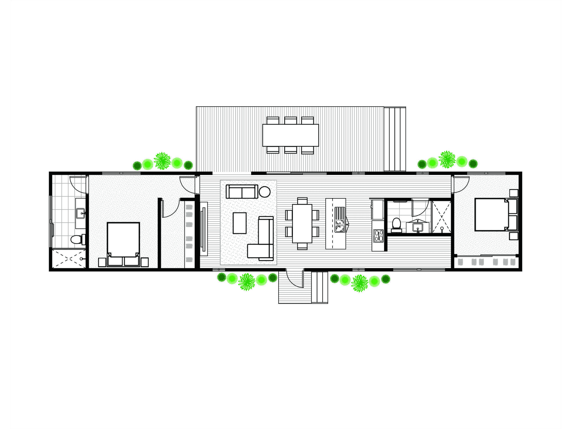
Perched on top of a hill in the middle of dairy country, this custom Ecoliv modular home in Loch leverages passive solar design principles for comfort and operational efficiency year round. With a design brief to make this a home to grow old in, we customised the design to create a true forever home. Featuring solar power and a 10,000 litre tank, this home can run off-grid while design features such as Tasmanian oak engineered flooring ensure its inhabitants are living in sustainable style.
| Modules | 2 |
| Living Area | 97.2 m² |
| Deck Area | 25.82 m² |
| Price | From $390,000 + GST |
